NYMPHENBURGER STR. 22
München 2015
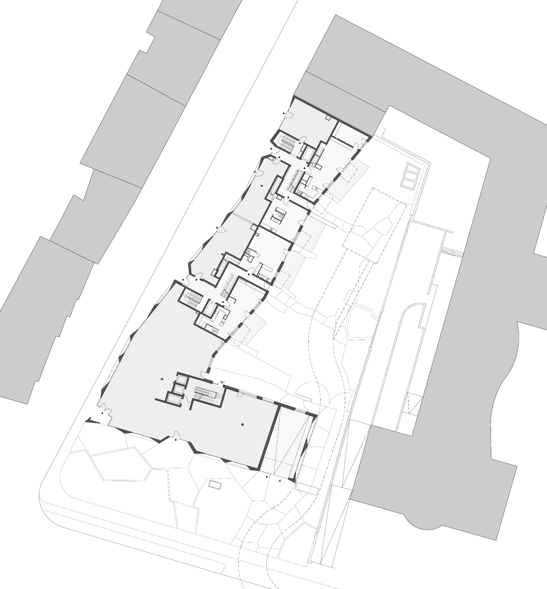
Neubau Wohn und Geschäftshaus






NEUBAU WOHN- UND GESCHÄFTSHAUS
BAUHERR: OTTMANN GMBH & CO. SÜDHAUSBAU KG
BGF: CA. 8000 M2
FERTIGSTELLUNG: 2015
DIE SKULPTURALE GESTALT BESETZT MIT IHREM WINKELFÖRMIGEN, KRÄFTIGEN VOLUMEN DIE EXPONIERTE ECKSTELLE
ZUR NYMPHENBURGER STRAßE NEU, UND IST DARAUF ANGELEGT, EINEN NEUEN IMPULS AUSZUSENDEN FÜR DIE ZUKÜNFTIGE ENTWICKLUNG DES WOHNENS AN DEM ORT.
DIE ENTSTANDENE FORM IST EINE DES AUSTARIERENS, ZWISCHEN GEWOHNTEM UND EINER NEUEN ENERGIE.